+7 993 620 25 17
отдел продаж

8 495 055 25 17
пн-вс с 09:00 до 20:00

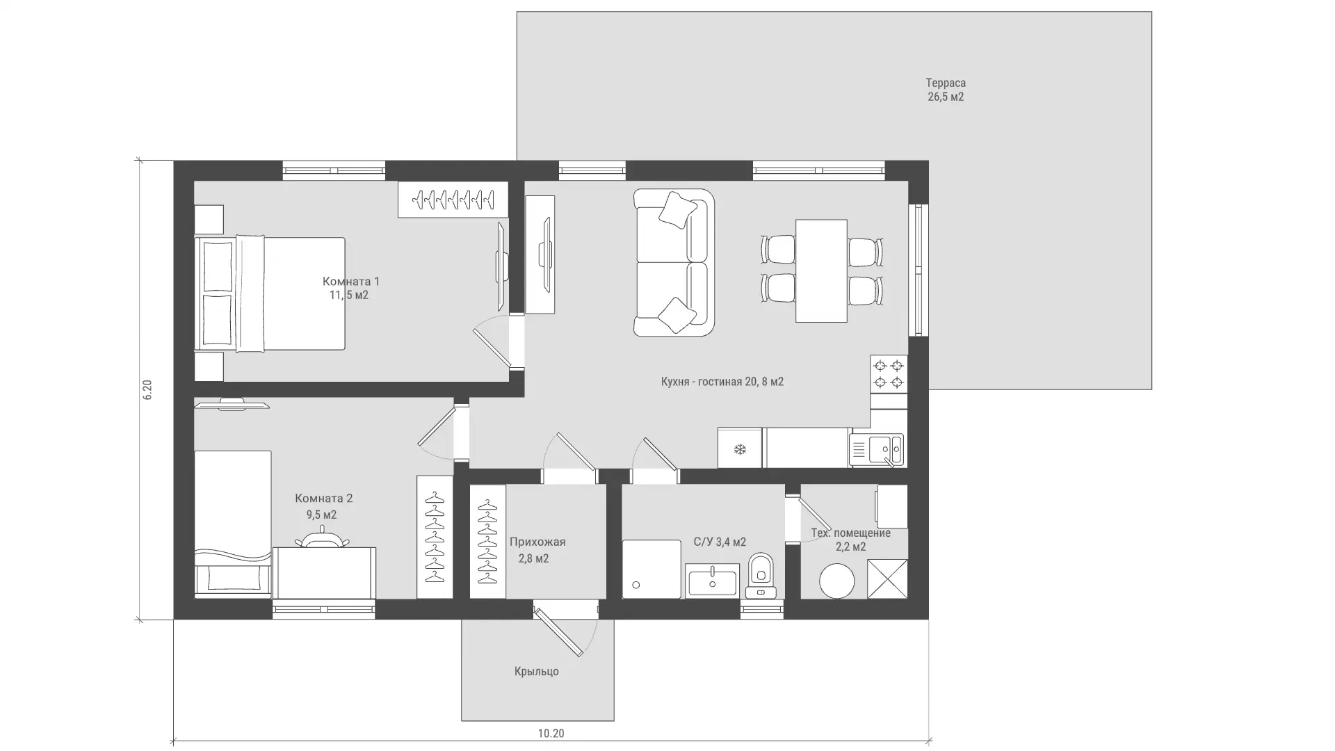
Проект дома "Аура 1"

Общая площадь:

50,2 м2

2 комнаты

Терраса

Санузел

Кухня-гостиная

Аура-1

Компактный дом для жизни без лишней площади.
Аура 1 - это продуманный формат небольшого дома, в котором есть всё необходимое для комфортного проживания.
В центре планировки кухня-гостиная, объединяющая пространство и создающая ощущение открытости.
Дом включает две комнаты, прихожую и санузел с техническим помещением, что делает его удобным для повседневной жизни.
Идеально подойдёт для:
- небольшой семьи
- загородной дачи
- компактного участка

Продуманная геометрия дома формирует ощущение пространства и света:
высота стен - 2,4 м, в коньке - 3,9 м.
Фасады адаптируются под стиль и участок: планкен и штукатурка, полностью дерево или фиброцемент.
Площадь указана без террас - их формат и размер вы определяете под свой сценарий жизни.

Выберите свою комплектацию и узнайте стоимость

Выберите фундамент
Забивные ЖБ сваи
Толщина утепление стен, кровли, цокольного перекрытия
Толщина утепления 200мм. Плиты из каменной ваты rockwool.
Утепление перегородок
Толщина утепления 100мм. Плиты из каменной ваты rockwool.
Кровля
Кликфальц
Окна
Rehau grazio (70мм)
Отделка фасада
Планкен + фиброцементные панели
Внутренняя отделка стен
Без отделки
Внутренняя отделка пола
Без отделки
Потолок
Без отделки
Инженерные коммуникации
Что еще учесть?
Оставьте свой номер, мы отправим подробную смету вам в мессенджер *

100% ГАРАНТИЯ ФИКСИРОВАННОЙ ЦЕНЫ

Стоимость строительства не изменится, даже если цены на материалы вырастут.
Прозрачная смета без скрытых платежей.

100% БЕЗОПАСНОСТЬ СДЕЛКИ

Поэтапная оплата (аванс 10%).
Вернем деньги, если что-то пойдет не так.

ГАРАНТИЯ КАЧЕСТВА И ДОКАЗАННАЯ ЭНЕРГОЭФФЕКТИВНОСТЬ

Гарантия 5 лет на дом и материалы (прописано в договоре).
Сертификаты на материалы.

ИСПОЛЬЗУЕМ ТОЛЬКО ПРОВЕРЕННЫЕ МАТЕРИАЛЫ

Экскурсии на строящиеся объекты — убедитесь лично в качестве.
 Партнерство с брендами Grand Line, Rockwool, Технониколь, Rehau.

КЭШБЭК 5%

если от вас придут по рекомендации

ФИКСИРОВАННЫЕ СРОКИ

Штраф за каждый день просрочки — мы заинтересованы уложиться в срок.

ОНЛАЙН КАМЕРЫ

Онлайн-трансляции со стройки — наблюдайте за процессом
в реальном времени.

УДОБНЫЙ ЧАТ

Cоздаем специальный чат, в который выкладываем последние новости посвященные строительству дома.

Остались вопросы?

Задайте нам их прямо сейчас, в мессенджере или через форму

Имя
Номер телефона *
Напишите свой вопрос

Tapio - строительная компания из Москвы, специализирующаяся на современных каркасных домах и барнхаус (barnhouse). Проектирование и строительство домов под ключ в Москве и Московской области.

8 495 055 25 17

Отправляя любую форму на сайте, вы соглашаетесь с политикой конфиденциальности данного сайта