+7 993 620 25 17
отдел продаж

8 495 055 25 17
пн-вс с 09:00 до 20:00

Проект дома "A-frame"

Общая площадь:

65,3 м2

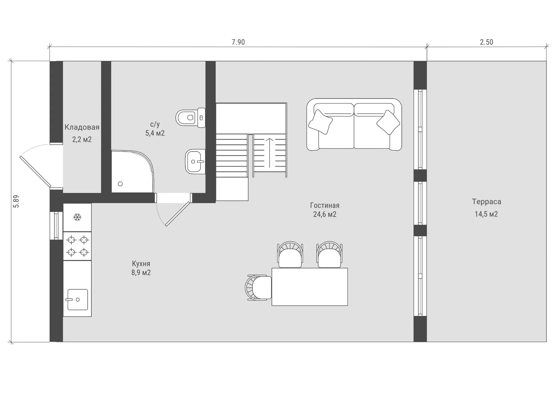
Cпальня

Терраса

Санузел

Кухня-гостиная

A-frame 65

A-frame 65 - стильный дом с характерной архитектурой и продуманной планировкой для комфортной жизни и отдыха.
Внизу расположена кухня и гостиная, объединённые в одно пространство с выходом на террасу - идеальное место для отдыха и встреч с близкими. Также на первом уровне предусмотрены санузел и техническое помещение, что делает дом удобным для повседневной эксплуатации.
На антресоли размещена спальня, создающая уютное и приватное пространство с видом на основную зону дома.
A-frame 65 подойдёт для:
- загородного дома или дачи
- проживания пары
- аренды как стильного формата отдыха
Яркая архитектура, панорамные окна и терраса делают этот дом не только удобным, но и визуально привлекательным решением.

Выберите свою комплектацию и узнайте стоимость

Выберите фундамент
Забивные ЖБ сваи
Толщина утепление стен, кровли, цокольного перекрытия
Толщина утепления 200мм. Плиты из каменной ваты rockwool.
Утепление перегородок
Толщина утепления 100мм. Плиты из каменной ваты rockwool.
Кровля
Металлочерепица
Окна
Rehau grazio (70мм)
Отделка фасада
Имитация бруса
Внутренняя отделка стен
Без отделки
Внутренняя отделка пола
Без отделки
Потолок
Без отделки
Инженерные коммуникации
Что еще учесть?
Оставьте свой номер, мы отправим подробную смету вам в мессенджер *

100% ГАРАНТИЯ ФИКСИРОВАННОЙ ЦЕНЫ

Стоимость строительства не изменится, даже если цены на материалы вырастут.
Прозрачная смета без скрытых платежей.

100% БЕЗОПАСНОСТЬ СДЕЛКИ

Поэтапная оплата (аванс 10%).
Вернем деньги, если что-то пойдет не так.

ГАРАНТИЯ КАЧЕСТВА И ДОКАЗАННАЯ ЭНЕРГОЭФФЕКТИВНОСТЬ

Гарантия 5 лет на дом и материалы (прописано в договоре).
Сертификаты на материалы.

ИСПОЛЬЗУЕМ ТОЛЬКО ПРОВЕРЕННЫЕ МАТЕРИАЛЫ

Экскурсии на строящиеся объекты — убедитесь лично в качестве.
 Партнерство с брендами Grand Line, Rockwool, Технониколь, Rehau.

КЭШБЭК 5%

если от вас придут по рекомендации

ФИКСИРОВАННЫЕ СРОКИ

Штраф за каждый день просрочки — мы заинтересованы уложиться в срок.

ОНЛАЙН КАМЕРЫ

Онлайн-трансляции со стройки — наблюдайте за процессом
в реальном времени.

УДОБНЫЙ ЧАТ

Cоздаем специальный чат, в который выкладываем последние новости посвященные строительству дома.

Остались вопросы?

Задайте нам их прямо сейчас, в мессенджере или через форму

Имя
Номер телефона *
Напишите свой вопрос

Tapio - строительная компания из Москвы, специализирующаяся на современных каркасных домах и барнхаус (barnhouse). Проектирование и строительство домов под ключ в Москве и Московской области.

8 495 055 25 17

Отправляя любую форму на сайте, вы соглашаетесь с политикой конфиденциальности данного сайта